
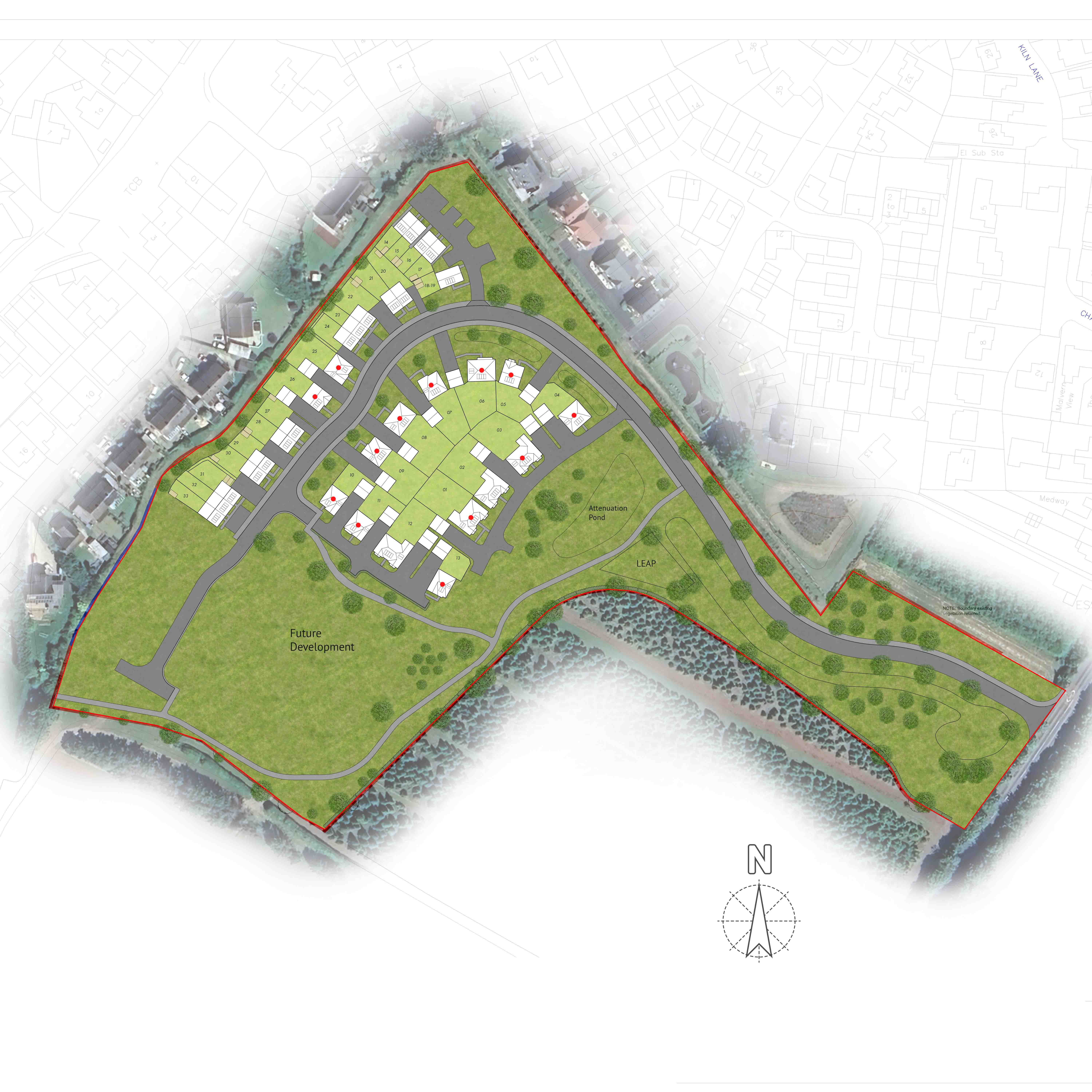
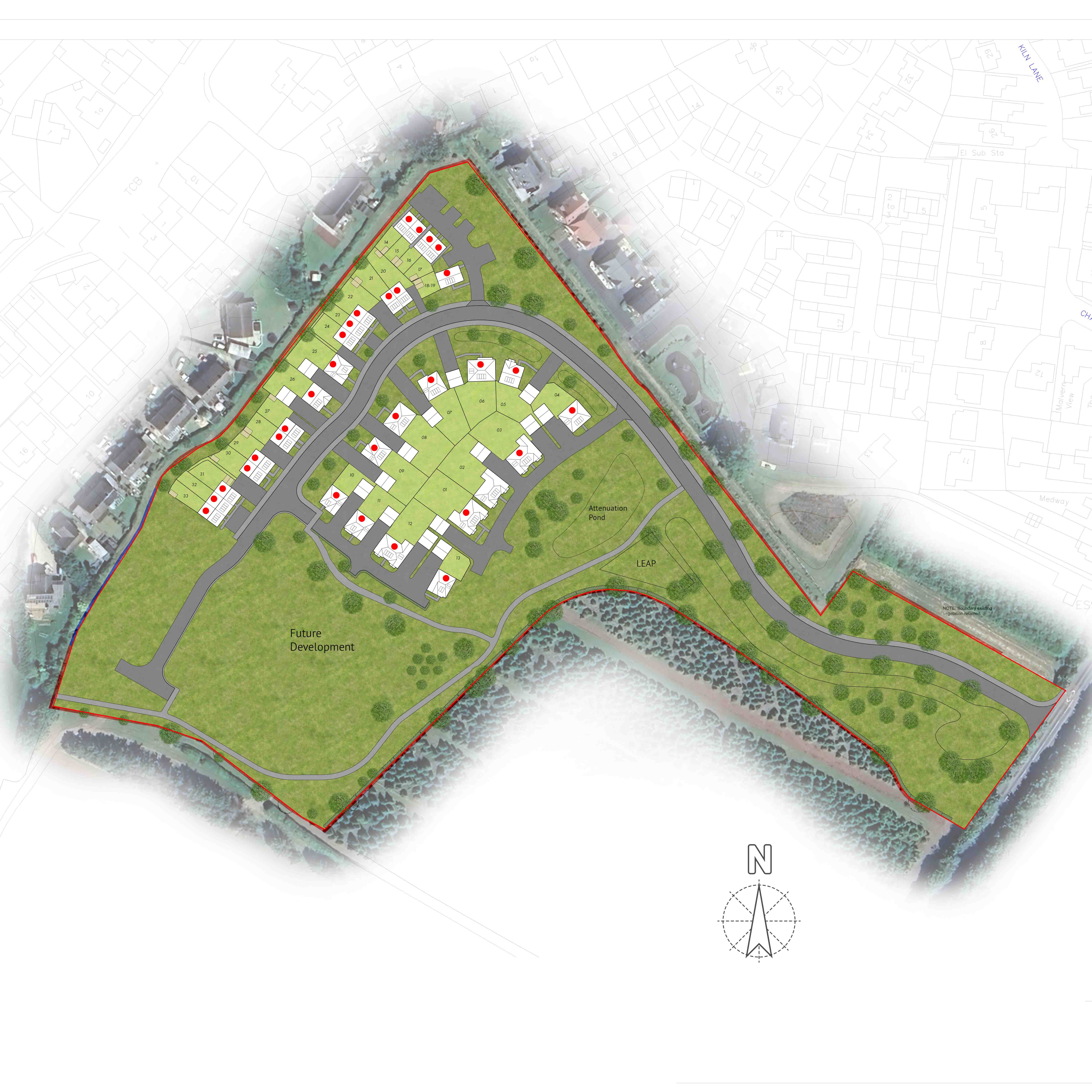
Potters Reach
Leigh Sinton, WR14 1UU
Show Home Now Open
Friday & Saturday 10am - 4pm
sales@pottersreach.co.uk
Please note all of the plots at this development have now sold. View our current developments here.
A stylish collection of 33 privately owned new homes in Leigh Sinton village set on the edge of the Malvern Hills a designated Area of Outstanding Natural Beauty
We take great pride in designing and building traditional homes, with a focus on quality and placemaking.
Platinum Specification
Featuring our superior platinum specification*, these EPC A rated homes benefit from an extensive range of upgrades as standard, and energy efficiency measures to help you live more sustainably.
*does not apply to LCHO homes

Local Area
Leigh Sinton is a hamlet in the Malvern Hills District of the county of Worcestershire.
The backdrop of the Malvern Hills, a designated Area of Outstanding Natural Beauty, provides stunning scenic landscape to explore. The village has a thriving community that enjoys a village shop & Post Office, pub and ‘Good’ rated Primary School.
Nearby Malvern and Worcester offer a diverse range of eateries and café’s for all tastes as well as local and high street brand shopping.
Enquire Now
If you'd like to know more about this development, please get in touch with our team.
For all ‘New Homes Developments’ we work closely with appointed agents. We will instruct them to make initial contact to progress your enquiry.










.webp)
.webp)


.webp)
.webp)
.webp)


.webp)
.webp)


